A Beautiful Sunroom Addition

 

 

 

 
Sunroom additions are one of our very favorite projects to design and build! These rooms always turn out beautifully, with large windows and lots of natural light. They are great for homeowners that want to enjoy nature all year round, without having to worry about the weather or outdoor temperatures. Another perk of having a sunroom is that it’s such a functional, multi-purpose space. It can be used for just about anything – a home gym, a playroom for kids, a study or home office, or even an extra space to set up a table if you’re hosting a holiday dinner!
 

 
Our recent clients loved the idea of having such a flexible, usable area that could meet so many of their needs throughout the year. They met with our team to discuss what they had in mind and the designing process began.
 

 

 

 

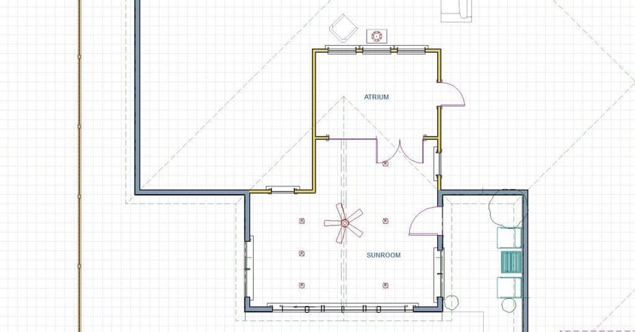
Once our designers knew what was important to the clients, they took photos and measurements of the existing home and backyard. When adding onto a house, it’s important that the addition matches the architecture and exterior style of the existing structure. Our designers were able to create a custom floor plan and 3-D renderings to show how the finished sunroom would look from both the inside and outside.

 

 

 

 

 

 

 

 

 

 

 

 

 

 

After finalizing the plans and obtaining the necessary permits from the City of Arlington, construction was underway!

 

 

 

 

 

 

 

 

 

 

 

 

The foundation was poured, the framing was constructed, and the new room began to take shape. Seeing the walls go up on a room addition is always an exciting experience for our clients, as it really brings the project to life!
 

 

 

 

 

 
Our talented interior designer assisted the clients in selecting a beautiful vinyl wood plank flooring, the right texture and paint for the new walls and ceiling, the stain for the trim, and the style and finish of the hardware for the new doors. Custom cut triple pane vinyl windows were installed as the real show-stopper of the new space. This type of window is ideal for sunrooms, as it provides superior energy efficiency and keeps the room at a comfortable temperature despite the chill or heat outside.

 

 

 

 

 

 

Along with all the natural light from the windows, the finished sunroom is lit with strategically placed LED can lights to create a shadow-less environment, perfect for the client’s hobby of potting plants.

 

 

 

 
Large cordless shades installed on the windows provide privacy when needed, and still let in adequate sunlight during the day.
 

 

 

 
Stained French doors were installed as an entrance to the sunroom from the atrium, which was previously the back porch. Sunlight floods this area as well, through a large skylight we installed. What a beautiful view to look out the living room and see this atrium leading to the new sunroom!
 

 

 

 
The finished project is exactly what the clients had in mind – a bright, beautiful sunroom to enjoy throughout every season! The grandkids love the space, and the clients could not be happier with it. Looking at the seamless completed addition, it’s as though it has been a part of this house all along!

 

 

 

 

We would like to thank all of our talented & committed designers, craftsmen, project managers and vendors that helped create this project; every individual played a vital role that made this job a success! We would also like to thank our fantastic photographer, Todd Ramsey at Impressia, for providing these beautiful final shots!

 

 

If your home could use some extra space, such as a sunroom, contact us today! We’d be more than happy to meet with you, discuss your options, explain the process, and get started on your custom designs!
 

 
Warm Regards,
 
The Medford Remodeling Team
 

 

Leave a Comment