A Sneak Peek of Our Most Current Remodeling Project

It is a busy, busy time of year for us at Medford Remodeling! We are so thankful to be busy and to have the privilege of working with so many great clients. Our Most recent project is a kitchen, master bathroom and hall bathroom remodel here in Arlington, Texas.
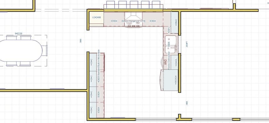
While we can’t reveal too much right now (don’t want to ruin the surprise!), here is a sneak peek of the kitchen before the remodel, the designs we have created, and the kitchen during the demo:
The new floor plan will provide a more cohesive, functional layout, while the cut-out bar area will provide more space to host friends and family without overcrowding the kitchen.

The demo in the existing kitchen is now underway!
Stay tuned for more photo updates and the grand reveal when this project is complete!
If you’re interested in remodeling your kitchen, or if you’d like more information about our design-build process, please don’t hesitate to contact us! We’d be happy to help!
Warm Regards,
The Medford Remodeling Team