A Two-Phase Remodel in Arlington, TX

In 2018, we helped an Arlington, TX homeowner remodel her kitchen into a beautiful, functional space. One that reflected her personality, storage needs, and love for thoughtful design. Fast forward to 2025, and she called on us again, this time for a cozy, custom porch-to-office conversion.

 

This two-phase remodel tells the story of how design evolves over time, and how a client’s favorite furniture piece became the thread connecting both projects.

 

 

Arlington, TX Kitchen Remodel by Medford Design-Build

BEFORE: Arlington, TX Kitchen Remodel by Medford Design-Build

 

Phase One (2018): From Cramped & Dated to Bright & Functional

 

The Challenge: A Layout That Didn’t Work

 

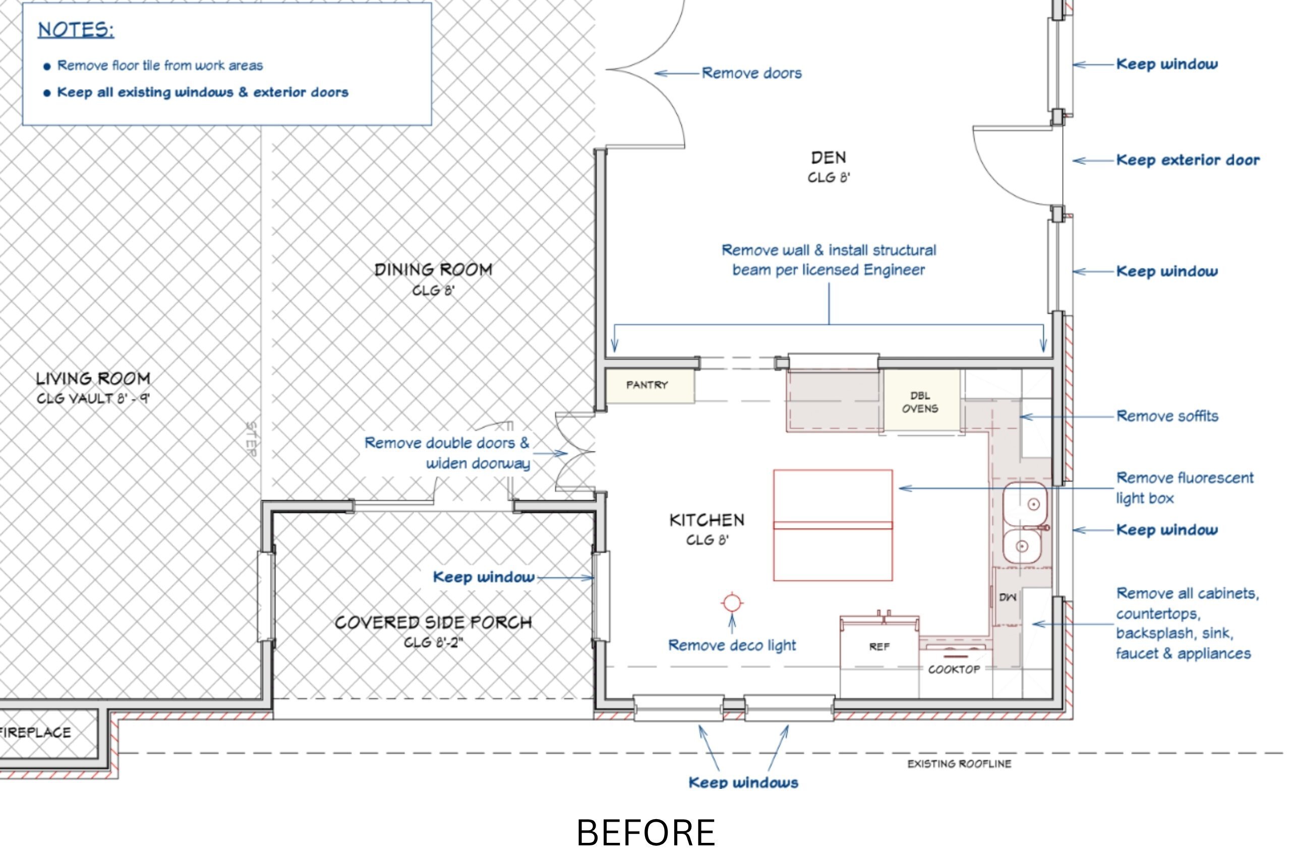
When our Arlington client first reached out, her kitchen was dark, outdated, and inefficient. The layout created daily frustration, with multiple pinch points between the refrigerator, cooktop, sink, and dishwasher, making it difficult to cook or clean without bumping into something (or someone).

 

 

 

 

Opening Up the Space

 

One of the biggest changes we made was removing the wall between the kitchen and the den. This not only opened up the space visually but gave us room to expand the layout for better flow and function.

 

 

Arlington, TX Kitchen Remodel by Medford Design-Build

BEFORE: Arlington, TX Kitchen Remodel by Medford Design-Build

 

 

A Desk-Inspired Design

 

Starting with inspiration from an unexpected place: the homeowner’s favorite desk. Positioned just off the kitchen in the living room, the desk’s classic style helped guide the overall design, especially when choosing finishes and details that felt timeless and cohesive.

 

 

Arlington, TX Kitchen Remodel by Medford Design-Build

BEFORE: Arlington, TX Kitchen Remodel by Medford Design-Build

 

 

Custom Features & Thoughtful Touches

 

We created a one-level black island with fluted legs and extra storage, grounded in the same traditional-meets-modern style. Other highlights included:

 

  • Pearl white shaker cabinets
  • Black hardware and black cabinet knobs
  • Subway tile backsplash
  • A quartz composite sink and sleek stainless appliances
  • Plank-style tile flooring with a warm wood look

 

Arlington, TX Kitchen Remodel by Medford Design-Build

 

 

Phase Two (2025): A Seamless Office Addition with Smart Details

 

 

Maximizing a Modest Footprint

 

The second phase of this Arlington remodel focused on a porch-to-office conversion. Though the room measures just 11×7 feet, it was carefully planned to feel integrated with the existing home.

 

 

Arlington, TX Porch Conversion to Home Office by Medford Design-Build

 

 

Floor Plans & Layout

These visuals help illustrate how we transitioned the space from an open patio to a fully enclosed, private workspace that seamlessly ties into the rest of the home.

 

 

A Favorite Workspace, Now with a Room of Its Own

 

One of the standout pieces in this home was always the client’s oversized desk—a stately, 112″ piece with elegant detailing. Previously tucked into the corner of the living room, the desk now has a dedicated spot in the new office, positioned along a custom-built wall where patio doors once stood. The space was designed around it, turning a well-loved piece of furniture into the centerpiece of a functional and private workspace.

 

 

Arlington, TX Porch Conversion to Home Office by Medford Design-Build

 

 

Flooring: A Designer Solution

 

The plank tile used in the kitchen was discontinued, so our interior designer, Stephanie, worked closely with the client to make the most of what remained. The solution? Use the original planks as a seamless border around the office, and lay a coordinating hexagon tile accent in the center.

 

 

Arlington, TX Porch Conversion to Home Office by Medford Design-Build

 

 

Additional Features:

 

  • One relocated window to allow natural light and positioned to minimize computer screen glare.
  • Custom translucent rain-glass French doors from the kitchen into the office.
  • Dimmer-controlled color-selectable LED can-lighting for flexible brightness and color.
  • Paint colors and baseboards carried over from the kitchen and dining room for a cohesive look.
  • Exterior wall built with Hardie siding to replace hard-to-match brick.

 

 

Arlington, TX Porch Conversion to Home Office by Medford Design-Build

BEFORE: Arlington, TX Porch Conversion to Home Office by Medford Design-Build

 

 

Connected by Design, Years Apart

 

 

The real magic in this remodel? The connection between projects, years apart, that still feel cohesive. By anchoring both phases with consistent materials, thoughtful design, and a client-designer collaboration, this Arlington, TX home now has a kitchen and home office that work together beautifully.

 

 

Arlington, TX Porch Conversion to Home Office by Medford Design-Build

BEFORE: Arlington, TX Porch Conversion to Home Office by Medford Design-Build

 

 

A Special Thanks To Our Team:

 

  • Structural Design: Michael Medford, Jr.
  • Aesthetic Design: Stephanie Milford
  • Drafting and Renderings: Brandy Anderson
  • Production Management: Dave Broadfield
  • Project Management & Trim Carpentry: Jeff Murphy
  • Plumbing: Express Master Plumbing
  • Electrical: Marc Miller Electric
  • Paint: Phillip Painting Company
  • Flooring & Tile: Hilton’s Flooring & Tile Showroom
  • Countertops, Flooring, & Tile Fabrication: HRG Tile & Granite
  • Ventilation: Southern Air Mechanical
  • Staging: Millie Eagleston
  • Final Photography: Dallas Real Estate Media

 

 

Design Selection Highlights:

 

 

Design Selections: Arlington, TX Remodel by Medford Design-Build

 

 

Thinking About a Remodel in Arlington, TX or the Surrounding Areas?

 

Whether you’re planning a kitchen remodel, converting a porch into a home office, or starting something completely new, our team is here to help bring your vision to life. With thoughtful design and expert craftsmanship.

 

Contact Us to schedule your consultation.

Browse More Projects for inspiration.

 

 

Arlington, TX Kitchen Remodel by Medford Design-Build

 

 

Warm regards,

Medford Design-Build

Leave a Comment