A 50-Year-Old Kitchen Gets a Stunning Upgrade

A lot can change in 50 years, especially when you compare dated homes to the modern aesthetic seen in today’s new builds. Low-hanging soffits have been replaced with sky-high ceilings; cabinets are taller and more uniform with hidden interior hinges; singular box lights have been phased out with sleek recessed can lights; even things like faucets, hardware, and decorative light fixtures have evolved over the years to become the popular styles we see today.
As trends and styles continue to change, not updating your home for literal decades can result in a home that needs a complete overhaul. Such was the case for our recent 1961 kitchen remodel in Arlington, Texas.
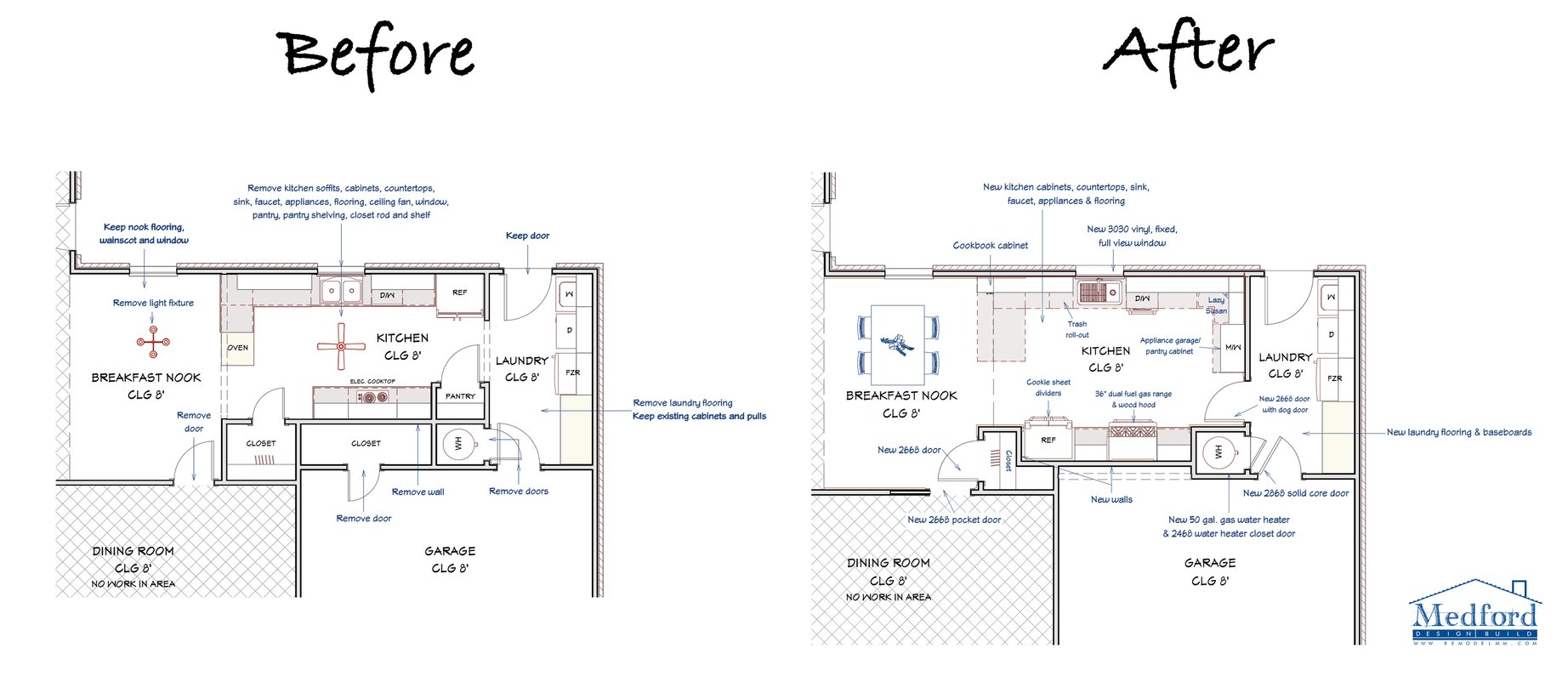
Our client came to us facing many problems with the design of her original kitchen. The space felt crowded due to the large oven that was located at the end of the peninsula and a closet that opened into the main entrance. Also, the main walkway through the kitchen went straight into the laundry room, lacking separation.
Structurally, the goal was to make the kitchen wider by pushing the stove cabinet back into the available space of a garage closet on the opposite side of the wall. This provided a more linear pathway through the kitchen while also making the room larger.
Our designers opted to enclose the laundry room by adding a wall and a doorway, allowing the rooms to be completely closed off from one another if needed.
The existing storage closet that opened into the kitchen’s threshold was useful for holding cleaning supplies, so instead of removing it completely, our designers simply moved the entrance to the closet around the corner to the breakfast area. This allowed ample space to relocate the fridge and include built-ins around it, while also solving the problem of the closet door opening into the middle of the main walkway. Creative problem solving always pays off!
In this before shot, you can see the peninsula oven that was right in the walkway upon entering the kitchen. It was important to keep the countertop and storage space provided by the peninsula, while still streamlining the walkway and creating a clean line of vision into the breakfast nook. Removing the fur down allowed for the cabinets around the entire kitchen to be extended up to the ceiling, while strategically placed can lights created a bright, modern look. It’s amazing how much larger the kitchen feels just from these few modifications!
Our client knew she wanted to incorporate this beautiful line of Café brand appliances into her new kitchen — they were some of the first items she picked out! The matte white finish with brushed bronze handles are such showstoppers; our Interior Designer, Stephanie, wanted to be sure the rest of the kitchen came together with the same level of elegance and class to compliment these high-end appliances.
Beautiful brushed bronze handles and pulls were chosen to match the appliances, along with a stunning champagne-bronze Delta faucet.
Adjustable shelving was added at the end of the new, larger cabinets for versatile storage and display options. Deep pan drawers were included below the quartz countertop for ample storage space, and a convenient trash pull-out was installed just between the sink and the stacked utensil drawers; a great feature for the cooks in the house when it’s time to meal prep!
The little details of this kitchen, such as the subway tile wrapped into the edge of the window and the seamless single-bowl undermount sink create a sleek, cohesive aesthetic.
Our client loved the current trend of two-tone cabinetry: the upper cabinets and lower cabinets being different colors. Knowing the client’s gray and white color scheme, our Interior Designer, Stephanie, selected Sherwin Williams“Skyline Steel” gray for the lowers and “Zurich White” for the uppers, creating a beautiful, visually interesting combination that flowed well with the bronze hardware and white appliances.
The single-hung window behind the sink was replaced with a full-view window, allowing a great view for bird-watching in the backyard and letting in plenty of sunlight. Because the low-hanging soffit was removed, our team was able to install a vintage-style light fixture over the sink and window for improved lighting when doing dishes. Below the sink, you’ll notice that no false-front drawers were used; bringing the cabinet doors all the way up creates a better line of sight and a cleaner look.
The new cabinetry really takes advantage of the usable space in this kitchen. Our designers always strive to create cabinet layouts with functionality and space optimization as the primary goal. It’s clear that the goal was met for this project!
This angle shows the dividing wall that was added to separate the kitchen from the laundry room. More often than not, our clients ask to remove walls to open up or combine spaces; for this particular project, however, adding a wall made the most sense. It allowed for additional storage space in the kitchen, including more cabinetry, lower drawers, and an appliance garage/pantry combination. It also provided for a door to be installed, which can now be closed as needed.
The new corner that was created from the wall addition allowed for a Lazy Suzan to be installed in the lower cabinets. This is a fantastic feature that provides ample storage for spices, wine bottles, and other items that can easily become cluttered or disorganized.
The original walk-in pantry took up a significant amount of space at the end of the kitchen with it’s large door. By removing the pantry, our designers were able to lengthen the cook area by adding lower drawers and an extended countertop. The appliance garage/pantry combo that was added with the new wall made up for the lost storage space in a much more efficient way.
A beautiful wood hood was installed above the new range oven for a built-in look. Cabinets were also built around the new refrigerator in it’s new location on the outside perimeter of the kitchen. This location allowed easy access without creating traffic through the prep and cook areas. The built-in cabinetry around the fridge features convenient cookie sheet storage and a finished-out look.
The new vent hood was installed higher than the original hood, showcasing the beautiful subway tile backsplash and making the wall feel taller.
From the breakfast nook looking into the kitchen, you can see what a drastic change was made by removing the oven and ceiling soffit. The cluttered, dark room now feels open and bright. Previously, this side of the peninsula was dead space due to the placement of the oven; it now houses additional storage cabinets below the countertop.
The flooring in this kitchen combines 12×24” and 24×24” tiles, laid in a Versailles pattern to prevent linear grout lines. And create a beautiful, neutral canvas for the updated space.
You can also see the new door to the storage closet that was relocated around the corner of the breakfast nook from it’s original location in the kitchen’s entryway. This makes for much easier access and cleans up the threshold between the rooms.
Looking at this kitchen, you would never guess that it was originally built in 1961! The completed remodel is beautiful, functional, and exactly what our client hoped it would be!
We’d like to recognize our talented team members, vendors, and suppliers that contributed to this project:
Structural Design: Mike Medford, Sr.
Aesthetic Design: Stephanie Milford
Drafting and Renderings: Brandy Anderson
Production Management: Michael Medford, Jr.
Project Manager: Dave Broadfield
Trim Carpentry: Dave Broadfield, Neil Norris, Greg Norris
Cabinets and Shelving: Bailey Cabinets
Plumbing: Express Plumbing
Electrical: Marc Miller Electric
Drywall: Alex Green Drywall
Framing Carpentry: Dave Broadfield, Neil Norris, Greg Norris
Paint: Phillip Painting Company
Tile & Counters Fabrication: HRG Granite
Plumbing Fixtures: Ferguson
Flooring: Prosource
Granite: Hilton’s Flooring & Tile
Final Photography: Impressia– Todd Ramsey
If you are interested in giving your dated kitchen a much-needed upgrade, our team would be happy to help! Our designers can explain the process, answer your questions, and send you a FREE sample kitchen design package to your email. Contact us today for more information!
Warm Regards,
The Medford Design-Build Team